








所在地 : 山口県和木町
構造 : RC造 3階建
竣工 : 2010年3月
敷地は和木町役場、文化会館や和木美術館など、公共建築の集積する行政エリアに位置し、北側東側敷地は住宅地に接していて、静かな環境に恵まれている。
新築設計にあたって、仮設校舎を作らず、既存校舎を生かしながら新築校舎を建設する条件があり、生徒の授業、学校生活について影響の少ない建物配置にした。
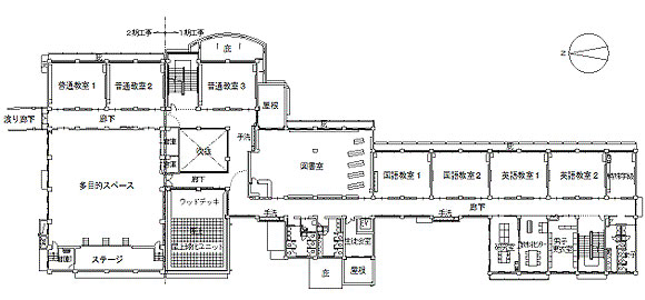
山口県では5校目、東部では初めてとなる「教科教室方式」を取り入れたあたらしい学校運営の平面設計とした。
この学校が新たな学舎の下で和木中学校の伝統を引き続き築いていかれることを願っている。

外観





所在地 : 山口県下関市
構造: SRC 2階建
竣工 : 2007年
多種多様なスポーツとセレモニーへも対応できる体育館
既存アプローチは正門よりの正面性から考えても玄関南東隅に面する必要があった。
建物は南北軸とし、眺望の開けた2階東側にギャラリーを設け眺望を活かす配置とした。
玄関ホールは多人数が使用できるよう動線を考慮し広いスペースと多数の下足箱を設置した。
アリーナは大人数での授業にも対応出来るよう6人制バレーボールコート2面、バトミントンコート6面、バスケットコートを設ける事が出来る広さとした。
2階には男女更衣室、シャワー室、トイレを設置し、その他更衣スペースやトレーニングルームを設置し多人数による授業、及び部活動にも対応可能とした。

外観


所在地 : 山口県岩国市
構造:【 屋根】SRC
【柱壁】RC 2階建
竣工 : 2006年
この建物は、岩国市にある高等学校の体育館です。
屋根、外壁等は、長寿命化、維持費のかからない材質を選びました。
周辺の環境への配慮のため、杭の工法は低振動、低騒音で排水土量も少なくする工法にしました。
内部床は床弾性確保のためデッキプレート制振鋼板を下地としてフローリングを貼りました。
内部壁は残響時間の低減のため開口率5%以上の穿孔合板としました。

正面全景


所在地 : 山口県岩国市
構造 : SRC 地上4階建
竣工 : 2006年
少子高齢化が急激に進む中で、高齢者福祉における介護形態は、施設の規模に関わらず少人数でのケアが今後の主流となっていくと考えられる。
当施設は、1階に小規模・多機能サービス拠点としてのデイサービスを、2,3階に各9人を1ユニットとしたグループホームで構成されており、建物もケアの一要素と考え、家庭的で落ち着いた雰囲気の中で共同生活を送れる場所として設計に配慮している。

外観


所在地 : 山口県岩国市
構造: 木造平屋建
竣工 : 2006年
岩国市横山の中央、城山を背にして鎮座する白山比盗_社は、876年加賀の白山比盗_社を勧請し、884年に社殿が建立されました。
その後、吉川氏歴代藩主の氏神となり、1727年に再建された全社殿は、壮麗豪華で西国の東照宮とも称美されましたが、明治23年に惜しくも焼失しました。
今回再建された拝殿は、明治31年に再建され平成16年5月に焼失した建物を元にし、新しく祭器庫、神札所を併設しています。
敷地は山裾に位置し、湿気の多い場所であり、耐久性を考慮して廻廊床レベルまでは鉄筋コンクリート造としています。